GX、LS型螺旋输送机
GX型螺旋输送机
概述
GX型螺旋输送机是利用螺旋转动将物料沿机壳连续推移而进行输送的。本机具有结构简单,外形尺寸小,成本低,操作安全,能按工艺要求满足多点进料和排料。
技术性能与技术参数
|
规格 |
主要技术性能 |
驱动装置 |
重量 (kg) |
|||||
|
直径 |
长度(m) |
产量 (水泥) (吨/时) |
转速 (转,分) |
减速机 |
电动机 |
|||
|
型号 |
速比 |
型号 |
功率 (kw) |
|||||
|
GX200 |
~10 |
9 |
60 |
JZQ250 |
23. 34 |
Y90S-4 |
1.1 |
726 |
|
GX200 |
~20 |
9 |
60 |
JZQ250 |
23. 34 |
Y90L-4 |
1.5 |
1258 |
|
GX250 |
~10 |
15.6 |
60 |
JZQ250 |
23. 34 |
YlOOL2-4 |
2.2 |
960 |
|
Gx250 |
~20 |
15.6 |
60 |
JZQ250 |
23. 34 |
Y100L1-4 |
3 |
1750 |
|
GX300 |
~10 |
21.2 |
60 |
JZQ350 |
23. 34 |
Y100L2-4 |
3 |
1373 |
|
GX300 |
~20 |
21.2 |
60 |
JZQ350 |
23. 34 |
Y112M-4 |
4 |
2346 |
|
GX400 |
~10 |
51 |
60 |
JZQ400 |
23. 34 |
Y132S-4 |
5.5 |
1911 |
|
GX400 |
~20 |
51 |
60 |
JZQ500 |
23. 34 |
Y160M-4 |
11 |
2049 |
|
Gx500 |
~10 |
87.5 |
60 |
JZQ400 |
23. 34 |
Y132M-4 |
7.5 |
2381 |
|
GX500 |
~20 |
87.5 |
60 |
JZQ650 |
23. 34 |
Y180M-4 |
18.5 |
5389 |
|
Gx600 |
~10 |
134.2 |
45 |
JZQ750 |
23. 34 |
Y180L-4 |
22 |
3880 |
|
Gx600 |
~10 |
134.2 |
45 |
JZQ850 |
23. 34 |
Y250M-4 |
55 |
7090 |
GX型螺旋输送机的制法和装法说明
GX螺旋机按使用场合要求的不同,分为S制法和D制法两种。
S制法—带有实体螺旋面的螺旋,其螺距等于直径的0.8倍。
D制法—带有带式螺旋面的螺旋,其螺距等于直径。
GX螺旋机按驱动装置装配方法的不同,分为右装和左装两种:
右装—站在电动机尾部向前看,减速器低速轴在电动机的右侧。
左装—站在电动机尾部向前看,减速器低速轴在电动机的左侧。
GX螺旋机的出料口有方形出料口、手推式出料口和齿条式出料口三种。后两种出料口拉板的开闭方向,随安装不同而分右装、左装两种:
右装—站在螺旋机头节往尾节看,拉板向右拉开。
左装—站在螺旋机头节往尾节看,拉板向左拉开。
GX型螺旋输送机安装尺寸及长度组合

(一)外形及安装尺寸
螺旋输送机长度
单位:mm
|
螺旋直径D
|
A
|
B
|
C
|
E
|
F
|
G
|
H
|
K
|
J
|
M
|
N
|
Q
|
P
|
R
|
T
|
T1
|
X
|
Z
|
d
(kg)
|
d1
|
a
|
f
|
I
|
I1
|
b
(hs)
|
t
|
|
200
|
342
|
384
|
180
|
80
|
140
|
200
|
18
|
25
|
20
|
200
|
200
|
153
|
220
|
110
|
60
|
60
|
123
|
150
|
40
|
16
|
205
|
195
|
80
|
155
|
12
|
43.5
|
|
250
|
392
|
464
|
220
|
140
|
200
|
260
|
20
|
28
|
25
|
200
|
200
|
183
|
270
|
135
|
70
|
70
|
125
|
180
|
50
|
20
|
237
|
225
|
100
|
155
|
16
|
55
|
|
300
|
468
|
555
|
270
|
160
|
240
|
320
|
22
|
28
|
25
|
200
|
200
|
213
|
300
|
160
|
75
|
75
|
130
|
210
|
60
|
20
|
264
|
250
|
120
|
160
|
18
|
65.5
|
|
400
|
572
|
685
|
340
|
220
|
320
|
400
|
22
|
30
|
35
|
300
|
300
|
273
|
350
|
210
|
90
|
85
|
145
|
270
|
80
|
25
|
325
|
310
|
160
|
180
|
24
|
87
|
|
500
|
706
|
823
|
400
|
300
|
400
|
500
|
30
|
35
|
40
|
300
|
300
|
333
|
450
|
264
|
100
|
95
|
165
|
330
|
100
|
25
|
393
|
375
|
200
|
205
|
28
|
108
|
|
600
|
806
|
973
|
500
|
400
|
500
|
600
|
30
|
40
|
40
|
300
|
300
|
383
|
550
|
314
|
110
|
105
|
170
|
380
|
120
|
30
|
433
|
415
|
240
|
205
|
32
|
129
|
注:1、螺旋机输送长度及尺寸L均见表二表三。2、图中n×500为盖卡子尺寸,n值视螺旋长度而定。3、图中尺寸p为进出料口中心线。
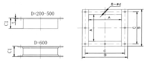
进出料口装置
1、进料口

|
螺旋直径 |
A |
B |
C |
C1 |
t |
d |
重量kg |
图号 |
|
200 |
220 |
306 |
272 |
100 |
3 |
9 |
3.64 |
GX20□10□00 |
|
250 |
270 |
356 |
330 |
120 |
3 |
9 |
4.8 |
GX25□10□00 |
|
300 |
320 |
428 |
386 |
140 |
4 |
13 |
8.88 |
GX30□10□00 |
|
400 |
450 |
528 |
492 |
160 |
4 |
13 |
12.42 |
GX40□10□00 |
|
500 |
528 |
662 |
612 |
160 |
4 |
17 |
16.56 |
GX50□10□00 |
|
600 |
628 |
762 |
720 |
180 |
4 |
17 |
21.2 |
GX60□10□00 |
2、方形出料口

|
A
|
B
|
C
|
E
|
F
|
G
|
H
|
K
|
J
|
M
|
|
200
|
226
|
312
|
272
|
165
|
8
|
3
|
9
|
4.36
|
GX20□10□00
|
|
250
|
276
|
374
|
330
|
195
|
10
|
4
|
9
|
7.52
|
GX25□10□00
|
|
300
|
328
|
426
|
386
|
225
|
10
|
4
|
13
|
9.36
|
GX30□10□00
|
|
400
|
428
|
536
|
492
|
280
|
10
|
4
|
13
|
14.28
|
GX40□10□00
|
|
500
|
536
|
670
|
612
|
340
|
15
|
4
|
17
|
26.14
|
GX50□10□00
|
|
600
|
636
|
774
|
720
|
430
|
15
|
6
|
17
|
39.2
|
GX60□10□00
|
注:螺旋直径为600毫米时,出料口采用角钢结构。
手推式出料口与齿条式出料口尺寸本样中略去,顾客函索即复。
LS型螺旋输送机
●特点
LS型螺旋输送机(以下简称螺旋机)结构新颖,技术指标先进,头部、尾部轴承移至壳外,中间吊轴承采用滚动,滑动可以互换的两种结构,均设防尘密封装置,出料端设有清扫装置,整机噪声低、适应性强,操作维修方便,进出料口位置布置灵活。
●应用范围:
螺旋机被广泛使用在各种工业部门,如建材、电力、化工、冶金、煤炭、铝镁、机械、轻工、粮食及食品行业;适用于水平或小于20°倾角,输送粉状、粒状和小块状物料、如水泥、煤粉、粮食、化肥、灰渣、砂子等,物料温度200℃以下。
螺旋机不宜输送易变质的、粘性大的、易结块的物料,因为这些物料在输送时会粘结在螺旋上,并随之旋转而不向前移动或者在吊轴承处形成物料的积塞,而使螺旋机不能正常工作。
LS型螺旋机螺旋直径从100毫米到800毫米,共有九种规格,长度从4米到70米,每隔0.5米一档,选型时符合标准公称长度,特殊需要可在选配节中另行提出。
按旋机驱动方式分为两种:
C1制法—螺旋机长度小于35m时,单端驱动。
C2制法—螺旋机大于35m时,双端驱动。
按螺旋机中间吊轴承种类分为:
M1-为滚动吊轴承,采用80000型密封轴承,轴盖上另有防尘密封结构,常用在不易加油,不加油或油对物料有污染的地方,密封效果好,吊轴承寿命长,输送物料温度≤80℃(订货时可不注明)。
M2-为滑动吊轴承,设防尘密封装置,常用在输送物料温度比较高(>80℃),或输送液状物料。

LS型螺旋输送机规格、技术参数
|
规格型号
|
200
|
250
|
315
|
400
|
500
|
|
螺 距
|
200
|
250
|
315
|
355
|
400
|
|
n
|
100
|
90
|
80
|
71
|
63
|
|
Q
|
13
|
22
|
31
|
62
|
98
|
|
n
|
80
|
71
|
63
|
56
|
50
|
|
Q
|
10
|
18
|
24
|
49
|
78
|
|
n
|
63
|
56
|
50
|
45
|
40
|
|
Q
|
8
|
14
|
19
|
39
|
62
|
|
n
|
50
|
45
|
40
|
36
|
32
|
|
Q
|
6.2
|
11
|
15.4
|
31
|
50
|
注:1、n——转速r/min(偏差允许在10%范围内);
2、Q——输送量m3/h。
外形尺寸图及外形尺寸表
|
ΦD
|
F
|
E
|
W
|
I
|
I1
|
I3
|
螺旋选配
长度G
|
相应地脚
尺寸I2
|
Q
|
Y
|
L
|
||||
|
LS200
|
2500
|
2500
|
2500
|
2480
|
2500
|
2640
|
500
|
2000
|
2500
|
1500
|
2000
|
2500
|
225
|
180
|
112
|
|
LS250
|
3000
|
3000
|
3000
|
2980
|
3000
|
3140
|
1500
|
2000
|
2500
|
1500
|
2000
|
2500
|
250
|
200
|
140
|
|
LS315
|
3000
|
3000
|
3000
|
2980
|
3000
|
3140
|
1500
|
2000
|
2500
|
1500
|
2000
|
2500
|
330
|
220
|
180
|
|
LS400
|
3000
|
3000
|
3000
|
2980
|
3000
|
3140
|
1500
|
2000
|
2500
|
1500
|
2000
|
2500
|
340
|
227
|
224
|
|
LS500
|
3000
|
3000
|
3000
|
3000
|
3000
|
3160
|
2000
|
2200
|
3500
|
2000
|
2200
|
3500
|
400
|
250
|
280
|
|
ΦD
|
K
|
R
|
S
|
Z
|
O
|
H
|
V
|
J
|
e
|
p
|
T
|
d
|
L4
|
键b×h
GB1036-79
|
|
LS200
|
180
|
225
|
180
|
60
|
320
|
160
|
200
|
14
|
280
|
60
|
212
|
40
|
82
|
12×8
|
|
LS250
|
224
|
250
|
224
|
70
|
370
|
200
|
270
|
18
|
285
|
60
|
240
|
50
|
82
|
14×9
|
|
LS315
|
280
|
390
|
250
|
80
|
443
|
300
|
300
|
20
|
320
|
60
|
340
|
60
|
105
|
18×11
|
|
LS400
|
355
|
390
|
280
|
90
|
352
|
320
|
400
|
24
|
390
|
60
|
384
|
80
|
130
|
22×14
|
|
LS500
|
400
|
400
|
340
|
105
|
653
|
400
|
500
|
24
|
397.5
|
80
|
440
|
90
|
130
|
25×14
|
螺旋输送机总体布置:

一台螺旋机通常按驱动装置、头节、若干标准中部节,选配中间节,尾节顺序组成,除头节机壳和选配节外,各节螺旋及机壳均具有互换性,在出料端螺旋有清料装置,安装时注意位置。
驱动装置由一台行星摆钱针轮减速电机(或JTC减速电机)或选用JZQ型减速机承担,在头节前部装有止推轴承,可承受移动物料时而产生的轴向力,头节机壳内设吊轴承及底座,每一中间节安有一只吊轴承用以支撑螺旋轴,吊轴承内装有向心球轴承(或整体滑动轴承),在尾节后部装有滚动(滑动)轴承用以支撑螺旋轴和补充螺旋长度的误差,安装时应从头部开始,顺序进行。
在总体布置时还应注意,不要使底座和出料口布置在机壳接头的法兰处,进料口也不应布置在吊轴承的上方,如果因为开出料口影响底座的安排而不能遵循本原则时,使用单位应绘制螺旋机总图。
1、驱动装置及地脚尺寸:
(1) 减速机选用XWD型的驱动装置

2、进出料口
螺旋机进料口、卸料口由用户现场开,一般应从尾部进料,端部出料,也可从端部进料、由尾部出料;若需从中部加料,两端卸料,或从两端加料,中部卸料,订货时需来简图。
(1)进料口
进料口的结构表示如下图,进料口是用以连接螺旋机和进料漏斗的部件,其由盖扣夹紧在机盖上,也可用焊接的方法与机盖相联,装置进料口时应在所装的机盖上按进料口内孔尺寸开孔。

LS型螺旋机进料口的外形与安装尺寸
|
螺旋机型号
|
外形及安装尺寸mm
|
|||||
|
A
|
B
|
C
|
D
|
d
|
n(个)
|
|
|
LS200
|
200
|
300
|
256
|
100
|
14
|
8
|
|
LS250
|
250
|
350
|
306
|
100
|
14
|
8
|
|
LS315
|
315
|
415
|
370
|
160
|
14
|
8
|
|
LS400
|
400
|
500
|
456
|
160
|
14
|
8
|
|
LS500
|
500
|
600
|
558
|
160
|
14
|
12
|
(2)出料口
出料口的结构表示如下图,其系由钢板折成的方形管及法兰焊接而成,它不带能关闭的出料口控制机构,在使用时将出料口焊于机壳上,其法兰面与溜槽法兰相联,装配出料口的机壳还应按出料口的内孔尺寸开孔。

LS型螺旋机出料口的外形及安装尺寸(见表五)
|
螺旋机型号
|
外形及安装尺寸mm
|
||||||
|
A
|
B
|
C
|
D
|
E
|
d
|
n(个)
|
|
|
LS200
|
200
|
300
|
256
|
180
|
14
|
14
|
8
|
|
LS250
|
250
|
350
|
306
|
224
|
14
|
14
|
8
|
|
LS315
|
315
|
415
|
370
|
250
|
14
|
14
|
8
|
|
LS400
|
400
|
500
|
456
|
280
|
16.5
|
14
|
8
|
|
LS500
|
500
|
600
|
558
|
340
|
16.5
|
14
|
12
|
另:本厂还在原LS型螺旋输送机基础上改进生产有GLS系列管式螺旋输送机,其密封性能、控料性能较LS型螺旋输送机有较大提高,特别适用于输送各种流动性较好的粉状物料,其结构型式见下图:

您可能会对以下产品感兴趣
产品好不好 用我们的业绩证明
奥普核心合作伙伴
企业规模怎么样 用我们的资质说明
生产能力怎么样 用我们的设备和团队表明
新闻动态
- 侧式悬臂堆料机的构造及原理
- 什么是 熟料散装机,有哪三大性能特点
- 什么是 气箱脉冲布袋除尘器,安装注意事项概述
- 桥式刮板取料机的特点及操作注意事项
- 什么是圆盘给料机,有哪些优势特点
- 斗式提升机的六大特点概述
- 操作连续式均化库的四大注意事项
- 移动式堆料机三大优势特点及使用步骤
- 关于网站内容违禁词、极限词失效说明
- 斗式提升机的工作过程分为哪三个阶段
- 关于螺旋输送机,这些知识点要了解
- 螺旋输送机的特点及运行注意事项讲解
- 螺旋输送机的操作和保养要求
- 讲解螺旋输送机的优势特点
- 关于螺旋输送机的操作和保养要求
- 皮带式输送机结构及特点,整理的太全了,速收藏~
- 皮带式输送机使用是很广泛的
- 粉煤灰散装机是专业生产的一种机械设备
- 散装水泥装船机的构成
- 散装机使用性能要求


