OKX-Ⅱ卸料阀系统
概述
库底卸料装置由库底螺旋阀、库底分料箱、气动开关阀、电动流量控制阀及卸料溜子组成(见图一),用于水泥生料粉或水泥库底卸料。库底卸料装置能自动调节卸料流量且均匀,其结构合理,操作维护简单方便,可设三个下料口,用户也可选用库侧卸料装置(见图二)。
本厂卸料装置的气动开关阀(见图三)、电动流量调节阀(见图三)是采用德国技术制造,阀芯、壳体采用16Mn钢制作,阀芯表面镀铬,厚度10μm,以增加其耐磨性能,阀芯的密封采用优质整体羊毛毡密封,密封盒的松紧可在外部调节,更换时可在无须拆卸阀体的情况下从双侧抽出,阀芯开口、壳体部件下料均采用激光切割、机床加工的方式制作,充分保证设备装配的高精密度。
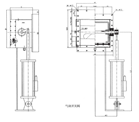
进、出口法兰及外形尺寸
代号 规格 | A1 | A2 | A3 | m | n x e | M | N | L1 | L |
B250 | 340 | 330 | 235 | 100 | 1 x 100 | 10 | 20 | 345 | 760 |
B300 | 390 | 380 | 260 | 90 | 8 x 85 | 12 | 22 | 370 | 760 |
B400 | 490 | 480 | 330 | 115 | 2 x 110 | 12 | 22 | 420 | 760 |
B500 | 590 | 580 | 380 | 110 | 3 x 110 | 14 | 24 | 470 | 780 |
B630 | 730 | 720 | 455 | 110 | 4 x 115 | 16 | 30 | 540 | 780 |




规格 部件 | B250 | B315 | B400 | B500 | B600 | 备注 | |
气 动 开 关 阀 | 螺旋闸门 | 250x250 | 315x315 | 400x400 | 500x500 | 630x630 | |
卸料能力 | 150t/h(max) | 220t/h(max) | 410t/h(max) | 550t/h(max) | 700t/h(max) | ||
阀芯开口 | Ω形或三角形 | Ω形或三角形 | Ω形或三角形 | Ω形或三角形 | Ω形或三角形 | 或η形 | |
流通面积 | 0.016m2 | 0.024m2 | 0.04m2 | 0.052m2 | 0.068m2 | ||
充气风量 | 13.5m3/h | 16m3/h | 21m3/h | 27m3/h | 34m3/h | 压力<8000pa | |
气缸 | QGB-100x200-MP4 | QGB-100x200-MP4 | QGB-100x200-MP4 | QGB-125x200-MP4 | QGB-125x200-MP4 | ||
耗气量12m3/h | 耗气量12m3/h | 耗气量12m3/h | 耗气量17m3/h | 耗气量17m3/h | 压力<0.6Mpa | ||
电磁阀KD25-8220V | 电磁阀KD25-8220V | 电磁阀KD25-8220V | 电磁阀KD25-8220V | 电磁阀KD25-8220V | |||
开关时间1-2S | 开关时间1-2S | 开关时间1-2S | 开关时间1-2S | 开关时间1-2S | |||
电 动 流 量 控 制 阀 | 调节范围 | 0-150t/h(max) | 0-220t/h(max) | 0-410t/h(max) | 0-550t/h(max) | 0-700t/h(max) | |
阀芯开口 | Ω形或三角形 | Ω形或三角形 | Ω形或三角形 | Ω形或三角形 | Ω形或三角形 | 或η形 | |
流通面积 | 0.016m2 | 0.024m2 | 0.04m2 | 0.052m2 | 0.068m2 | 压力<8000pa | |
充气风量 | 13.5m3/h | 16m3/h | 21m3/h | 27m3/h | 34m3/h | 或根据要求 | |
电动 执行器 | AS-25 | AS-25 | BS-60 | BS-60 | A+RS100 | ||
输出力矩250Nm | 输出力矩250Nm | 输出力矩600Nm | 输出力矩600Nm | 输出力矩1000Nm | |||
输入输出4-20mA | 输入输出4-20mA | 输入输出4-20mA | 输入输出4-20mA | 输入输出4-20mA | |||
全程时间30S | 全程时间30S | 全程时间30S | 全程时间30S | 全程时间30S | |||
电源电压220V50HZ | 电源电压220V50HZ | 电源电压220V50HZ | 电源电压220V50HZ | 电源电压220V50HZ | 或根据要求 | ||


